ПРОФИЛИ ДЛЯ СОЗДАНИЯ ДИЗАЙНЕРСКИХ ПОТОЛКОВ ИЗ ГИПСОКАРТОНА
ТЕНЕВОЙ ПРОФИЛЬ KRAAB GIPPS
Позволяет создать потолки с уникальным дизайном и эстетикой, благодаря теневому зазору и идеальному сопряжению цветов потолка и стен. Теневой шов хорошо смотрится как на ровных поверхностях стен, так и на плитке, декоративном кирпиче, 3D панелях и других материалах, образующих не ровную поверхность стен. Идеальное сопряжение контрастных цветов получается за счёт отступа краёв потолка от стен, вследствие чего отпадает необходимость проведения малярных работ в области примыкания потолка к стенам. Помимо эстетики, теневой зазор имеет функцию деформационного шва, что помогает сохранить внешний вид потолка на долгие годы. Со временем на гипсокартонном потолке появляются трещины. Это происходит вследствие нагрузок на потолок, связанных с усадкой дома, изменением влажностных характеристик и прочих изменений в процессе эксплуатации помещения. Деформационный шов снимает с гипсокартона все нагрузки и берёт их на себя.
Самые частые виды нагрузок связаны с линейными расширениями и геометрическими отклонениями. Линейные расширения гипсокартона — изменение его длины вследствие перемены температурно-влажностного режима. На каждый метр длины листа гипсокартона происходит расширение в один миллиметр.
Теневой профиль KRAAB GIPPS с демпфером предназначен для монтажа потолка из одного слоя гипсокартона. Его обязательно нужно крепить к стене. В процессе эксплуатации помещения, демпферная система примыкания снимает нагрузку с гипсокартона и берет её на себя. Теневой профиль KRAAB GIPPS без демпфера предназначен для монтажа потолка с одним или двумя слоями гипсокартона, и он не предполагает крепления к стене.
ПАРЯЩИЙ ПРОФИЛЬ GIPPS VILLAR
Профиль используется для создания эффекта «парящего в воздухе» потолка, потолок крепится с отступом от стен. Место крепления конструкции незаметно, по всему периметру потолок подсвечивается мягким светом.
- Компенсирует линейные расширения и предотвращает появление трещин
- Благодаря мягкой засветке не проявляет неровности стены
- Прост в монтаже
- Идеально подходит для стыковки потолка с рельефными поверхностями стен и ЗД-панелями
- Позволяет регулировать отступ от стены
НИШЕВАЯ СВЕТОВАЯ ЛИНИЯ
GIPPS 35
GIPPS 35 — нишевая световая линия открытого типа без рассеивателя с видимой шириной линии 35 мм. Чёрный GIPPS 35 — конструкционный профиль, используется в качестве чёрной ниши для монтажа точечных светильников, спотов или карнизов.
Белый и чёрно-белый профили предназначены для встраивания скрытой светодиодной ленты, при этом свет, отражающийся от белых стенок ниши –рассеянный и мягкий. В профили данных цветов также возможно встраивание дополнительного оборудования.
* GIPPS 35 рассчитан под толщину нижнего листа гипсокартона 12,5 мм
ТЕНЕВЫЕ ПРОФИЛИ
KRAAB GIPPS 3-12 И 3-15
Теневой профиль с демпфером Gipps 3-12 и теневой профиль с демпфером Gipps 3-15 рассчитаны на толщину гипсокартонного листа 12 и 15 мм соответственно. Преимуществом системы является возможность использования на наклонных (мансардных) потолках. Наличие демпфирующей части в системе
позволяет существенно снизить вероятность появления трещин на плоскости потолка.
Профили идеально стыкуются с парящим GIPPS VILLAR 1.0, так как имеют одинаковый узел наклонной видимой части
UMBRA
ПРОФИЛЬНАЯ СИСТЕМА КОНСТРУКТОРДЛЯ ПОТОЛКОВ ИЗ ГИПСОКАРТОНА
- Отсутствие необходимости фрезеровки
- Системность и совместимость всех профилей друг с другом
- Простота в монтаже и дружелюбность по отношению к мастеру
- Подходит под любые слои гипсокартона
- Независимое крепление конструкции потолка
- ПОЛНАЯ СОВМЕСТИМОСТЬ
- Профили полностью совместимы между собой и позволяют закрыть 99% потребностей при монтаже потолков из гипсокартона. Теневое примыкание, парящий потолок, карнизные и вентиляционные системы.
ОСНОВА СИСТЕМЫ
По периметру стены монтируется базовый профиль UMBRA — это основной элемент. Далее, с помощью демпферного соединения, мы можем установить любую другую часть системы — от теневого профиля до системы вентиляции с КСД.
ТЕНЕВОЙ ПРОФИЛЬ
Двусоставной потолочный профиль, монтируемый с каркасом потолка для обеспечения декоративного зазора в 7 мм. Связь со стеной обеспечивается с помощью базового профиля UMBRA через подвижный полимерный элемент.
Стыкуется с любым профилем из системы UMBRA.
КОНСТРУКЦИОННЫЙ ПРОФИЛЬ С РАССЕИВАТЕЛЕМ
Опорный потолочный профиль, монтируемый в каркас потолка, служащий основанием для карнизных профилей UMBRA различной ширины (115 мм и 140 мм), а также для расширителя UMBRA, которые обеспечивают связь со стеной с помощью базового профиля UMBRA через подвижный полимерный элемент.
При использовании двух профилей, соединенных карнизными UMBRA различной ширины, возможна установка в любом месте потолка без связи со стеной.
Форма профиля позволяет установить ленту и закрыть её комплектным рассеивателем.
КОНСТРУКЦИОННЫЙ ПРОФИЛЬ
Опорный потолочный профиль, монтируемый в каркас потолка, служащий основанием для карнизных профилей UMBRA различной ширины (115 мм и 140 мм), а также для расширителя UMBRA, которые обеспечивают связь со стеной с помощью базового профиля UMBRA через подвижный полимерный элемент.
При использовании двух профилей соединенных карнизными UMBRA (115 мм) и UMBRA (140 мм) возможна установка в любом месте потолка без связи со стеной.
ПАРЯЩИЙ ПРОФИЛЬ
Двусоставной потолочный профиль, монтируемый с каркасом потолка для обеспечения декоративного зазора в 30 мм. Связь со стеной обеспечивается с помощью базового профиля UMBRA через подвижный полимерный элемент.
Форма профиля позволяет установить ленту и закрыть её комплектным рассеивателем.
ВЕНТИЛЯЦИОННЫЙ ПРОФИЛЬ
Двусоставной потолочный профиль с перфорацией для организации вентиляции, имеющий возможность установки камеры статического давления (КСД) для локализованного перемещения воздушных масс. Монтируется с каркасом потолка для обеспечения декоративного зазора в 30 мм. Связь со стеной обеспечивается с помощью базового профиля UMBRA через подвижный полимерный элемент.
Форма профиля позволяет установить ленту и закрыть её комплектным рассеивателем.
В КСД UMBRA используется переходник ЭРА 612рп20п или воздуховод 620ВП 60 на 204.
РАСШИРИТЕЛЬ ЗАЗОРА
Элемент произвольного расширения видимого зазора для конструкционного профиля UMBRA с 30 до 100 мм.
КАРНИЗНЫЙ ПРОФИЛЬ 115 мм
Есть два способа установки:
— К стене с помощью базового профиля UMBRA через подвижный полимерный элемент
— Произвольно в любом месте потолка с помощью конструкционного профиля UMBRA с подсветкой или без
КАРНИЗНЫЙ ПРОФИЛЬ 140мм
Есть два способа установки:
— К стене с помощью базового профиля UMBRA через подвижный полимерный элемент
— Произвольно в любом месте потолка с помощью конструкционного профиля UMBRA с подсветкой или без.
ТЕНЕВОЙ ПРОФИЛЬ LONER
LONER — самостоятельный периметральный профиль, формирующий теневой зазор. Рекомендуем устанавливать, если в проекте кроме теневого зазора не предусмотрены какие-либо решения по периметру.
Потолочный профиль монтируемый к стене по периметру помещения для обеспечения декоративного зазора в 7 мм, является опорным для каркаса потолка.
Мягкая вставка на профиле компенсирует линейные подвижки гипсокартона.
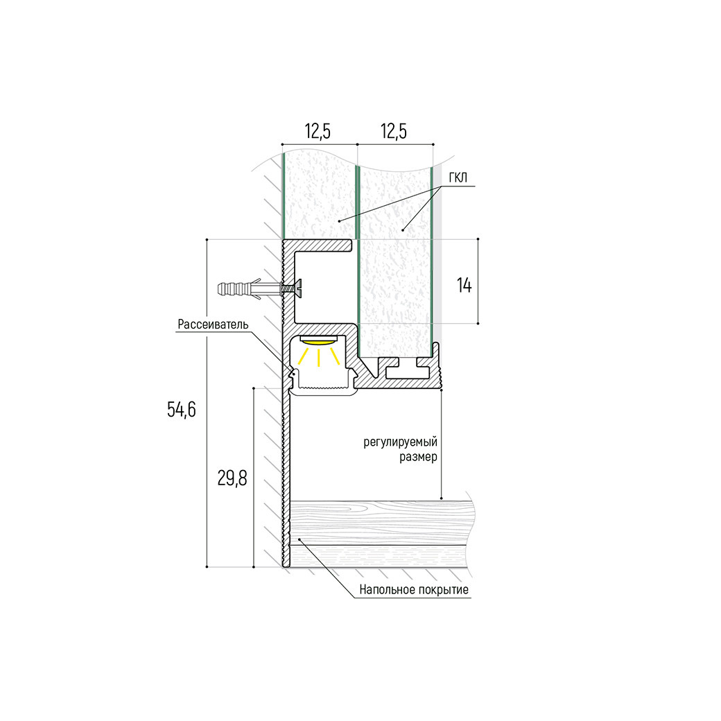
ТЕНЕВОЙ ПЛИНТУС KRAAB GIPPS
Теневой плинтус создаёт возможность гармоничного сопряжения цветов пола и стен, сглаживает момент стыка, даже если имеются какие-то неровности. Среди преимуществ такого решения отсутствие монтируемого плинтуса, который обычно создает неудобство при расстановке мебели, не давая ей вплотную прилегать к стене. Технология теневого плинтуса KRAAB GIPPS предотвращает появление линейных расширений, формирует ровный зазор и идеальное теневое примыкание. Металлический внешний угол предотвращает различные сколы и деформации стены или штукатурки.











































































